全国服务热线
首页>>新闻动态>>重庆防爆泄压
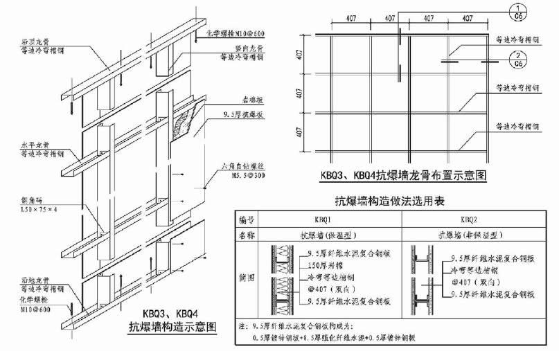
重庆抗爆墙构造做法示意图仅以保温型示例,非保温型重庆抗爆墙构造做法基本相同,可参照使用。
重庆泡沫混凝土泄爆墙
重庆纤维水泥板泄压墙
重庆企口装饰面泄爆墙
重庆控制室抗爆墙改造
重庆变电站泄爆墙
重庆装饰泄爆墙
重庆企口饰面泄爆板
重庆防爆墙施工
聚安环境专注重庆抗爆墙,重庆防爆墙,重庆泄压墙,重庆岩棉夹芯板泄爆墙,重庆可拆卸变电站泄压墙,重庆泄爆墙,重庆抗爆吊顶,重庆泄爆屋面安装
豫ICP备18040334号-1
QQ咨询
联系电话
微信扫一扫
返回顶部